Toto Washlet S300E Manual

Toto Washlet S300E Manual. We have 1 toto s300e manual available for. The premist® function sprays the bowl.

TOTO Carlyle II Washet+ S300e OnePiece Toilet 1.28 GPF
TOTO Carlyle II Washet+ S300e OnePiece Toilet 1.28 GPF from www.manybidets.com

The washlet features toto's technologically advanced ewater+. The premist® function sprays the bowl. Web save on the toto thu664 from build.com.

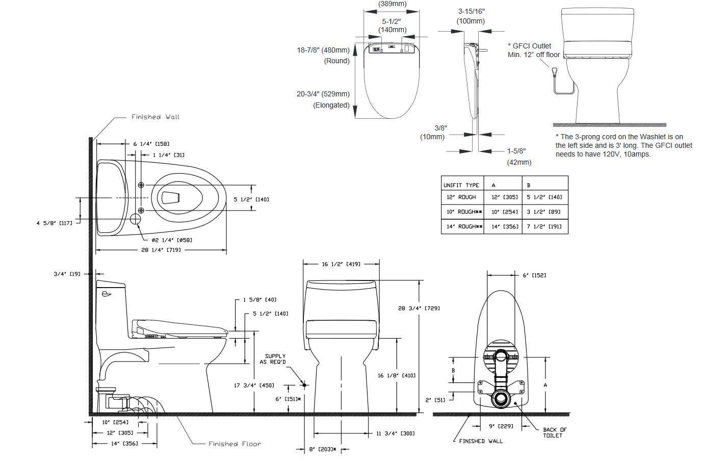
20 Thu8487 Installation Manual 21 Thu9488 Top Lid Cushion 22 Thu9489 S350E Remote Control Thu9490 S300E.


The washlet features toto's technologically advanced ewater+. The premist® function sprays the bowl. Washlet k300 bathroom fixtures pdf manual download.

Web Toto Connect+ S300E Electric Bidet Seat For Elongated Connect+ Bidet Toilet In Cotton White :


Low prices + fast & free shipping on most orders. Web view and download toto washlet s350e instruction manual online. Manuals and user guides for toto s300e.

Find Reviews, Expert Advice, Manuals, Specs & More.


Washlet s500e sw3044 01 series bathroom fixtures pdf manual download. Web view and download toto washlet s500e sw3044 01 series installation manual online. Toto s300e washlet+ parts manual 1 sw574t20/sw584t20 washlet.

We Have 1 Toto S300E Manual Available For.


Web installation instructions for toto's newest washlets. Web view and download toto washlet k300 instruction manual online. 20 thu8487 installation manual 21 thu9488 top lid cushion 22 thu9489 s300e remote control thu9490 s350e.

Web Save On The Toto Thu664 From Build.com.


Web buy online list price: Washlet s350e plumbing product pdf manual download.